рефераты
Главная

Рефераты по рекламе

Рефераты по физике

Рефераты по философии

Рефераты по финансам

Рефераты по химии

Рефераты по хозяйственному праву

Рефераты по цифровым устройствам

Рефераты по экологическому праву

Рефераты по экономико-математическому моделированию

Рефераты по экономической географии

Рефераты по экономической теории

Рефераты по этике

Рефераты по юриспруденции

Рефераты по языковедению

Рефераты по юридическим наукам

Рефераты по истории

Рефераты по компьютерным наукам

Рефераты по медицинским наукам

Рефераты по финансовым наукам

Рефераты по управленческим наукам

Психология и педагогика

Промышленность производство

Биология и химия

Языкознание филология

Издательское дело и полиграфия

Рефераты по краеведению и этнографии

Рефераты по религии и мифологии

Рефераты по медицине

Рефераты по сексологии

Рефераты по информатике программированию

Краткое содержание произведений

Реферат: Пожарная опасность трубчатых печей

Реферат: Пожарная опасность трубчатых печей

СПРАВОЧНО- МЕТОДИЧЕСКОЕ   
 ПОСОБИЕ

f

НЕФТЯНАЯ    КОМПАНИЯ  "СИДАНКО"

Открытое  акционерное общество "УДМУРТНЕФТЬ"

ОТРЯД  ВЕДОМСТВЕННОЙ  ПРОФЕССИОНАЛЬНОЙ

ПОЖАРНОЙ ОХРАНЫ

 



 

                                                            

 Пожарная опасность

   трубчатых печей

                                   

                               

 

 

 

 

 

 

 

 

 

 

 

 

 

 

 

 

   

 Ижевск- 2001г

                                       


УТВЕРЖДАЮ

Генеральный директор

ОАО "Удмуртнефть"

____________Е.И.Богомольный

« __ » декабря 2001г

 



 


Справочно-методическое пособие

 « Пожарная   опасность   трубчатых   печей »

        ( типа ПТБ-10, ПТБ-1 ОМ, ПТБ-1 ОА, БТП-10, ПТБ-5-40, ПТБ-5-40А, ППН-3 и пр.)

                

                                   

Настоящее справочно-методическое пособие разработали:

 Начальник Отряда ведомственной

 профессиональной пожарной охраны

 (ОВППО)  ОАО "Удмуртнефть"                                                                                                                А.С. Измайлов

Оперативный дежурный ОВППО                                                                                                  С. В. Пилин

Инструктор по противопожарной профилактике

ВПК№2 по охране Киенгопского месторождения нефти                                                           А.Б. Зезянов


Согласовано:

Председатель профсоюзного комитета

Отряда ВППО ОАО "Удмуртнефть"                                                                                                          А.Ф.Набоков

Рецензент: Главный технолог-зам.начальника

отдела по производству подготовки и

реализации нефти (ОПП и РН) ОАО «Удмуртнефть»                                                                         И.Н.Усанов     


                & Настоящее Справочно-методическое пособие  не может быть полностью или частично воспроизведено, тиражировано без разрешения  ОАО "Удмуртнефть" .

         G При перепечатке материалов из Справочно-методического пособия «Пожарная опасность трубчатых печей» ссылка на Отряд ВППО ОАО "Удмуртнефть" обязательна.

          © Отряд   ВППО  ОАО "Удмуртнефть"

          ® №01 / 770 от 23.11.01г


Ижевск- 2001г

              Аннотация

В пособии приведены основные сведения о назначении , устройстве трубчатых

печей, в том числе «ПТБ-5», «ПТБ-10» и «ПП-1,6». Отмечены причины взрывов и

пожаров при эксплуатации печей, приведены примеры пожаров и аварийных ситуа-

ций в ОАО «Удмуртнефть».

Рассмотрены вопросы паро- и азотного  пожаротушения печей и продувки инертным газом технологического оборудования. Даны извлечения из Правил пожарной безопасности   в   нефтяной   промышленности   (ППБО-85). Указаны физико-химические свойства и  показатели  пожаровзрывоопасности нефтей.

Пособие предназначено для работников пожарной охра­ны, может быть полезно

инженерно-техническим работникам  на ППН  и  студентам нефтяного факультета УдГУ.

Пожарная опасность трубчатых печей

I. Назначение, устройство и работа трубчатых печей

Нагревание горючих жидкостей до высоких температур наи­более часто производится в непрерывно действующих печах труб­чатого типа, например «ПТБ-5», «ПТБ-10» ( печь трубчатая блочная), блочных огневых нагревателях или установках с огневым подогревом, аналогичных  «ПП-1,6» ( путевой подогреватель).

Трубчатые печи применяются при перегонке нефти и мазута, производстве высокооктановых бензинов, при всех видах кре­кинга, гидрогенизации жидких и твердых топлив, дегидрогени­зации, разгонке каменноугольных смол, масел и других высоко­кипящих жидкостей.

Теплообменная поверхность трубчатых печей имеет вид не­прерывного трубчатого змеевика, по которому движется нагреваемая жидкость ( у нас- нефть).

Все трубчатые печи, где бы они ни применялись, имеют прин­ципиально одинаковое устройство. По внешнему виду трубчатая печь представляет собой небольшой домик.

Стены печей — каркасные. Металлический каркас  воспри­нимает нагрузку от основных элементов печи — свода, труб, ар­матуры, заполнения и пр. Внутренний слой стен  выкладывает­ся из огнеупорного шамотного кирпича, средний слой из теп­лоизоляционного кирпича или негорючего теплоизоляционного материала, а наружный слой  — из красного кирпича. Свод  печи устраивается из огнеупорного подвесного кирпича. Отдель­ные кирпичи свода при помощи подвесок  крепятся к каркасу.

Возможны совершенно иные способы теплоизоляции, например, как в печи «ПТБ-10»: вместо шамотного кирпича используется «сендвич», состоящий из листов жаропрочной стали и заключенного между ними слоя до 80-150мм минерало- ватного теп­лоизоляционного наполнителя.

Внутренний объем печи разделяется горизонтальной или верти­кальной стенкой  на две неравные части, из которых одна- большая- является топочным пространством и называется ка­мерой радиации, а другая- меньшая -  называется камерой конвекции. В камере радиации монтируются топливные фор­сунки . Количество форсунок зависит от мощности печи и мо­жет быть от 4 до 16 и более.

Некоторые виды печей могут иметь два вида форсунок- жидкостные и газовые. Обычно одна половина фор­сунок работает на жидком топливе, питаясь от общей топливной магистрали, а вторая половина- на газообразном топливе. Воз­дух, необходимый для сжигания топлива, подается в подогре­том состоянии по воздушным коробам .На месторождениях ОАО «Удмуртнефть» эксплуатируются печи на газообразном топливе.

Современные печи типа «ПТБ-5», «ПТБ-10» достаточно надежны в работе, имеют до семи степеней защиты, аппаратуру контролирующую изменение параметров по давлению (Ратм) в трубопроводе – при поступлении нефтепродукта в печь и при выходе из нее; по температуре (t°C) нефтепродукта при поступлении  в печь и при выходе из нее; по температуре (t°C) в радиантной и конвекционной камерах и пр. Обрыв пламени у форсунок контролируется датчиками с фотоэлементами  по инфракрасному излучению пламени. При этом повторное зажигание погасших форсунок возможно будет только после продувки камерного пространства.

В радиантной и конвекционной камерах размещены трубы теплообменной поверхности.

Трубопроводы, расположенные в радиантной камере, назы­ваются радиант-ными секциями или экранами (например, потолочный экран , боковые экраны ).                                                                       Обогрев этих трубопроводов происходит главным образом за счет теплового излучения, т. е. радиации факелов пламени и раскаленных продуктов сгорания, а потому камера и носит название радиантной.

Трубопроводы , расположенные в конвекционной камере, называются конвекционными трубами. В обогреве этих труб су­щественную роль играет теплопередача от дымовых продуктов путем конвекции (отсюда и название камеры).

Основную, тепловую нагрузку в трубчатых печах восприни­мают радиантные секции, конвекционные же трубы восприни­мают значительно меньше тепла. Для увеличения количества тепла, воспринимаемого конвекционными трубами, их распола­гают очень близко друг к другу и заполняют ими весь объем камеры. Это повышает скорость движения и турбулентность ды­мовых продуктов.

Все трубы конвекционной и радиантной секций последова­тельно соединяются в один непрерывный змеевик . Ди­аметры применяемых труб колеблются в пределах от 76 до 159 мм, а общая длина змеевика в некоторых типах печей, например «ПТБ-10» доходит до 200-250м .

   Трубы секций соединены последовательно фасонными отливками- так называемыми двойниками или ретурбендами, вынесенными в специальные короба . Двойники поз­воляют не только соединять концы двух соседних труб, но и производить очистку их внутренних поверхностей, а также за­менять поврежденные трубы новыми, не нарушая соседних соединений. Двойники могут иметь различное устройство.

Корпус двойника  имеет четыре отверстия. В два нижних отверстия  ввальцовываются концы труб змеевика. Два проти­воположных отверстия  конической формы плотно закрываются пробками  и прижимаются болтом  и распорной гайкой .

Жидкое и газообразное топливо, подводимое к форсункам, сгорает в камере радиации, выделяя большое количество тепла. Из радиантной камеры дымовые продукты поступают в конвек­ционную камеру, а затем в боров и дымовую трубу. В зависи­мости от назначения печи температура в зоне сгорания топлива может доходить до 750-1400° С. Температура дымовых продуктов при выходе из радиантной камеры колеблется около 800—900° С, а при выходе из конвекционной камеры в боров она примерно на 150—200° выше температуры поступающего в печь сырья. 

Очень часто тепло отходящих дымовых продуктов используют для подогрева воздуха, подаваемого в печь. Жидкость, подлежащая нагреву, специальными насосами по­дается в трубы конвекционной камеры и, проходя последователь­но все трубы, нагревается до заданной температуры.

Температурные режимы нагрева продукта и его давление в змеевиках зависят исключительно от назначения печи и меня­ются в весьма широких пределах:

·     при подогреве  нефтей в печах типа «ПТБ-10» на УПН температура продукта при вы­ходе из печи достигает 60- 70°С , а давление в трубах (на входе)— 15-16 атм;

·     при прямой гонке нефтей температура продукта при вы­ходе из печи достигает 330—370°С , а давление в трубах (на входе)— 15 атм;

·     при крекинг-процессах температура подогрева продукта может быть более 500° С, а давление – 50- 70 атм;

·      при гидрогенизации сланцевой смолы температура сырья по­вышается до 460° С, а давление достигает 310 атм;

Работа трубчатых печей характеризуется постоянной циркуляцией по змеевикам значительного количества горючей жидко­сти, нагреваемой до высокой температуры (очень часто выше температуры самовоспламенения нефти , которая находится в пределах от 250 до 320°С) и находящейся под большим внутренним давлением, а также наличием в топочном простран­стве источников открытого огня.

Одновременно в змеевиках трубчатой печи (в зависимости от ее типа) может находиться до 3- 15т горючей жидкости. Так как продукт в трубах находится под большим давлением и при высокой температуре, каждая его утечка может привести к серьезному  пожару, получению ожогов  обслуживающим персоналом.

При выходе наружу из печи продукт сразу же воспламе­нится, если его температура превышает температуру самовос­пламенения. В противном случае продукт может интенсивно испаряться и воспламенится после того, как пары его будут за­тянуты в топочное пространство. Растекаясь по площадке и по­падая в траншеи и канализацию, горящий продукт приводит к распространению огня на соседние аппараты и даже на сосед­ние установки.

Попадая из змеевиков внутрь печи, продукт вызывает интен­сивное горение, которое может привести к деформации труб змеевика, обрушению стен и свода, повреждению дымовых ка­налов и дымовой трубы. В этом случае огонь и дым будут вы­биваться из всех отверстий наружу и перегревать каркас, вызывая его деформацию. Убытки от повреждения при пожаре могут быть большими, так как сама печь является  достаточно дорогостоящим со­оружением.

При эксплуатации трубчатых печей, так же как и всех других печей, возможны: взрывы в топочном пространстве; пожары в топочном пространстве; пожары вне печи. Рассмотрим более подробно причины их возникновения.

II. Причины взрывов и пожаров в топочном пространстве печей

          Причины взрывов в топочном пространстве печей различны. Глав­ным образом взрывы в топочном пространстве трубчатых печей могут происходить при розжиге форсунок и по тем  причинам, ко­торые рассмотрены выше.

Взрывы при работе печи вследствие обрыва факелов пламе­ни мало вероятны, т.к. имеется на печах многоступенчатая система автоматики, исключающая самопроизвольную подачу газа после обрыва факелов пламени. Трудно предположить одновременное прекращение подачи и жидкого и газообразного топлива. Так же мало вероятно одновременное засорение всех форсунок.

Пожары в топочном пространстве печей возникают чаще всего в резуль­тате прогара или разрыва труб. Повреждение труб змеевика представляет собой одну из наиболее сильных аварий печи.

Змеевики трубчатых печей работают в очень тяжелых усло­виях. На них одновременно и постоянно воздействуют высокие температуры и большие внутренние давления. Кроме того, на­блюдается коррозия материала под действием продукта и дымо­вых газов и происходит механический износ материала непре­рывным потоком жидкости, в которой могут содержаться взве­шенные твердые частицы.     

Поэтому к трубам печей предъявля­ют высокие требования в отношении их прочности и стойкости против теплового, химического и механического износов. Приме­нение некачественных труб и нарушение нормального режима работы приводят к быстрому износу металла. Решающее значе­ние при прогаре труб имеет перегрев металла в результате коксоотложений.

Трубопроводы, находящиеся в печи, подвержены неравно­мерному тепловому воздействию. Средняя температура в радиантной камере примерно равна 950—1000° С, а в конвекционной камере — 500—600° С. Следовательно, стенки радиантных труб нагреваются до более высокой температуры, чем стенки конвек­ционных труб.

Высокая температура поверхности трубопровода вызывает термическое разложение прилегающих к ней слоев жидкости. В результате термического разложения образуется твердый по­ристый продукт — кокс, отлагающийся на поверхности трубы. Чем выше температура, тем интенсивнее коксообразование.

Коксообразование в трубах зависит не только от температур­ного режима работы, но и от скорости движения продукта по трубам. Как известно, при турбулентном режи­ме скорость движения частичек жидкости по трубе неодинакова. Частички жидкости, прилегающие к стенкам труб, движутся во много раз медленнее, чем частички, находящиеся в среднем сечении. Толщина пограничного слоя зависит от со­стояния поверхности трубы и средней скорости движения жид­кости. Чем шероховатее поверхность трубы и чем меньше ско­рость движения жидкости, тем больше толщина почти непод­вижного пограничного слоя. Этот слой подвергается интенсивно­му перегреву и термическому разложению с коксообразованием.

Скорость движения жидкости в трубах может снизиться в результате:

·     уменьшения производительности насосов (снижение числа оборотов,  

                    неисправность) или их остановки;

·     неисправности редукционного клапана за печью или его закоксовывания;

·     работы «на себя» центробежных насосов;

·     аварии подводящих трубопроводов.

Особенно опасно полное прекращение циркуляции продукта, так как при этом трубы быстро закоксовываются и выходят из строя. Процесс закоксовывания пусть медленнее, но  протекает даже  при нормаль­ных режимах работы.

Поэтому нарушение сроков очистки труб от кокса может привести к их прогару. Об интенсивном закоксовывании труб можно судить по сле­дующим признакам:

·     повышению температуры топочных газов на перевале печи при том же количестве сжигаемого топлива. Это происходит по­тому, что кокс, отлагаясь на трубах, уменьшает коэффициент теплопередачи от дыма к продукту. В результате уменьшается количество передаваемого жидкости тепла, и дымовые продукты уходят в боров более нагретыми;

·     повышению давления у питающих насосов при нормальном давлении на выходе из печи или уменьшению давления на вы­ходе из печи при нормальном давлении у питающих насосов. Это объясняется тем, что сопротивление труб увеличивается в ре­зультате уменьшения их сечения.

При достаточном опыте признаки прогара можно также определить визуально. Нужно отметить, что разрыв труб вызывается не только прогаром, но и другими причинами.

Сильный химический или механический износ материала труб может привести к их разрыву даже при нормальном дав­лении и тем более это возможно при повышенных давлениях.

Причиной усиленной коррозии металла с внешней стороны труб (со стороны топочного пространства) является нарушение нормального режима топки, т. е. работа с повышенным коэффи­циентом избытка воздуха, с избытком топлива или работа на повышенных температурных режимах против нормального. Естественно, что в большей степени этому виду износа подвержены центральные части радиантных труб.

Усиленную коррозию металла с внутренней стороны труб, т. е. со стороны продукта, вызывает наличие в нагреваемой жид­кости повышенного количества вредных химических примесей.

Например, нефть или каменноугольная смола не обладают коррозийными свойствами по отношению к стали, но они могут содержать значительное количество примесей в виде различно­го рода сернистых соединений (H2S; FeS), свободной серы (S), хлористых со­лей и т. п., которые при определенных условиях сильно изнаши­вают металл.

Примечание:   Обьемная  доля содержания сероводорода в газовой фазе (над поверхностью жидкости) на УПН, ДНС-15,27,36 Гремихинского месторождения  по данным института УдмуртНИПИнефть составляет 2-2,5%,  на других месторождениях - не превышает 1%. Обьемная доля содержания растворенного сероводорода в нефтепродукте по всем месторождениям в Удмуртии до-  0,02% [ 5 ].

При гидролитическом разложении хлористых солей кальция и магния (СаСl2; МgСl2) образуется соляная кислота, которая, взаимодействуя со стенками аппарата, дает хлористое железо (FеСl3). При гидролитическом разложении сернистых солей об­разуется сероводородная кислота (HS), которая, взаимодейст­вуя со стенками аппарата, превращается в сульфиды железа (FeS  и FeS 2).

Наиболее сильный химический износ, как показывает опыт, наблюдается по концам труб на протяжении примерно 1 м от двойников. Поверхности труб на этих участках очищаются от образующегося налета окислов вихревыми потоками продукта, что и способствует лучшему взаимодействию коррозирующих агентов с металлом.

Иногда трубы змеевика, не вызывающие опасности по на­ружному виду, становятся причиной аварии вследствие внут­ренних дефектов металла или механического износа внутренней поверхности стенок.

Так же как химическая коррозия, механическое истирание наиболее сильно сказывается на концах труб, т. е. в местах из­менения направления скоростей. Совместное действие коррозии и эррозии может привести к заметному уменьшению толщины стенок труб около двойников.

Внутреннее давление в системе повышается при нарушении нормального режима работы насосов, подаче продукта поршне­выми насосами в ококсованные змеевики, неисправности редук­ционного клапана и т. п.

Особенно опасно для труб резкое изменение давления. По­вреждение труб может быть небольшим в виде свища и весьма значительным в виде разрывов длиной в несколько десятков сантиметров. Естественно, что при этом в топку изливается боль­шое количество горючего продукта и происходит интенсивное горение.

На практике отмечено много случаев повреждения труб из простой стали. Особенно часто встречается прогар труб.

Так, на одном из крекинг-заводов в г.Перми произошел прогар центральной трубы потолочного экрана печи легкого крекинга. Во внутренний объем печи выли­лось при этом около 8 т нефтепродукта. Деформировалось 12 труб потолоч­ного экрана и шесть труб боковых экранов. Огонь угрожал соседним аппаратам и насосной станции. Внутри печи огонь был потушен водяным паром, около печи — пенной и распыленной водой. Печь была остановлена на пять суток.

Внимание! При определении причины пожара нужно иметь в виду, что разрыв в средней части трубы радиантной системы вызывает­ся в основном прогаром, а разрыв на конце трубы — уменьше­нием толщины стенок.

Интенсивное горение внутри топочного пространства, своего рода пожар, возникает также при попадании в печь горючей жидкости через газовые форсунки. При работе газовых форсу­нок, особенно в зимнее время, в газовой линии может образо­ваться значительное количество конденсата, который вместе с газом будет поступать в топку. Попадание жидкости в топку вызывает выброс огня через имеющиеся проемы наружу и резкий скачок температуры в печи, что приводит к частичному ококсовыванию труб.

На УПН Ижевского месторождения нефти 11 мая 2001г  в 18 час 40 мин на технологической установке- печи "ПП-1,6" произошел технологический инцидент, который привел к пожару. Из-за розлива нефтепродукта  горение распространилось по площади до 13 кв. м. Неисправности  технологического оборудования были устранены только 15.05.01г к 18 час 30 мин. Простой оборудования составил четверо суток.

            Вероятной причиной инцидента явилась неисправность датчика уровня жидкости (ДУЖ), предназначенного для контроля за уровнем нефтепродукта в установке УПС-3000. Регламентные работы на установке  своевременно не проводились и датчик ДУЖ  находился в не рабочем состоянии, т.к. поплавок завис на направляющей в результате касания смотровой лестницы.   

            При переполнении УПС-3000 нефтепродукт попал по газовой линии в газосушитель и далее по линии подачи попутного газа в газовую горелку печи "ПП-1,6", где и воспламенился. Вытекший нефтепродукт в течение часа под контролем дежурного караула ВПК№6 выгорал в камере сгорания печи и на земле. Учитывая длительность горения ,скорость выгорания нефтепродукта и площадь пожара можно сделать вывод , что произошел розлив не менее 1,95 м3  нефтепродукта.

Причины пожаров вне печи

Снаружи трубчатой печи пожа­ры могут возникать:

·     в камерах двойников (ретурбендов);

·     у фор­суночного фронта ;

·     на подводящем или отводящем продуктопроводе при его повреждении.

Причины пожаров в камерах двойников (ретурбендов)

Выход нагреваемой жидкости или ее паров наружу через двойники  наблюдается при неплотном прилегании пробки к корпусу двойника, при выбросе пробки, нарушении соединения труб с корпусом двойника и повреждениях кор­пуса.

Наиболее часто пожар возникает при выходе продукта вслед­ствие неплотного прилегания пробки к корпусу. Эта неплотность образуется при слабой затяжке нажимных болтов или недоста­точно тщательной очистке поверхностей от частичек кокса. Че­рез получившуюся щель выходит струйка жидкости или, чаше, пара. Струйка пара рассеивается в окружающее пространство. Когда выходящий продукт нагрет выше температуры самовос­пламенения, он сразу же загорается. Это повреждение несерь­езное и очень часто само ликвидируется, т. е. неплотность посте­пенно сама закоксовывается.

Серьезную аварию представляет выброс пробки или наруше­ние соединений труб с корпусом двойника. Выброс пробки про­исходит в результате срыва резьбы болта или гайки, поломки хвоста гайки или приливов корпуса. Причина этого заключает­ся не только в дефектах металла, но и в перенапряжениях, осо­бенно при попытке ликвидации неплотностей пробки путем под­тяжки болта без снижения давления в трубах.

Концы труб соединяются с корпусом двойника развальцов­кой. При некачественной развальцовке двойник вырывается из труб. Одной из причин выброса пробки и вырыва двойника из труб является работа при повышенном давлении или резкое из­менение давления.

При этих видах аварии наружу под большим давлением вы­брасывается струя горючего продукта. Чаще всего  он сразу воспламеняется. Если же продукт сразу не воспламенится, то происходит интенсивное испарение с загазовыванием территории установки. Образовавшееся газовое облако может воспламениться от фор­сунок печи или от других источников, расположенных на пути его движения. Выброшенные с большой силой пробки или двой­ники могут повредить соседние аппараты.

На одном из заводов г. Казани после ремонта трубчатой печи ее стали пускать в действие. Розжиг начали в 6 час утра. К 14 час печь была введена в нужный температурный режим, но работала под давлением в два раза меньше нормального( т.е менее50 атм) . В 15 час 15 мин давление резко повысили до 49 атм. Сразу же после этого произошла авария. Из печи были выброшены на расстояние более 25 м четыре двойника, сорваны три решетки и подвески труб. Одновременно из печи под большим давлением стала выбрасываться жидкость, которая сразу же воспламенилась. Горящая жидкость, разливаясь по территории, охватила огнем расположенные рядом аппараты и сооруже­ния. Несколько человек получили серьезные ожоги. По­жар был полностью ликвидирован только через полтора часа.

Непосредственными причинами вырыва двойников из труб явились боль­шая динамическая нагрузка, вызванная резким повышением давления в си­стеме, и некачественная развальцовка труб в вырванных двойниках.

Корпус двойников работает почти в таких же тяжелых усло­виях, как трубы. При изготовлении двойников из некачественно­го материала или при резких изменениях температур в корпусе могут образоваться трещины. Чаще всего повреждение возника­ет в результате воздействия на корпус атмосферных осадков (снег, дождь, сильный холодный ветер), если коробки двойни­ков не имеют дверец или они неисправны. В первую очередь трещины появляются в перемычке между отверстиями для пробок.

Причины пожаров у форсуночного фронта

Пожары у форсуночного фронта возникают в результате утечки топлива через неплотности фланцевых соеди­нений трубопроводов, сальников вентилей и задвижек, а также при механическом повреждении линий.

Утечка топлива может наблюдаться также при переполнении или неисправности напорных топливных бачков.

Открытый огонь печей, факелы пламени, применяемые для розжига форсунок, искры и раскаленные газы, выходящие через трещины кладки, а также высокая температура поверхности печи и дымоходов нередко вызывают воспламенение излившегося  топлива, нагреваемых веществ и сгораемых строительных конструкций.

Причины пожаров на подводящем или отводящем

продуктопроводе при его повреждении

Повреждения трубопроводов, подводящих или отводящих продукт из печи, образуются вследствие различного рода дина­мических воздействий и температурных деформаций. Стенки труб, особенно отводящей, нагреты до высокой температуры, поэтому отсутствие компенсаторов или нарушение теплоизоля­ции может привести к появлению больших температурных на­пряжений. Утечка жидкости наблюдается также при повреж­дении прокладок во фланцевых соединениях (разъедание, вы­жим) или удлинении нагретых крепежных болтов. Выход жид­кости или ее паров при неисправности отводящей линии часто сопровождается самовоспламенением их.

III. Остановка и пуск трубчатой печи.

Остановка трубчатой печи может быть:


·     плановой на чистку ;

·     для ремонта;

·     аварийной.


При остановке печи на ремонт или чистку медленно гасят форсунки и при непрерывной циркуляции продукта по трубам производят постепенное охлаждение конструкции печи. После этого выдавливают содержимое змеевиков и продувают их во­дяным паром до полного удаления продукта, что определяется через пробный краник по цвету и запаху.

Вскрытие пробок можно начинать через 30—35 мин после прекращения подачи пара. Сначала следует вскрывать контроль­ные пробки (верхние, по одной в каждой секции) для снижения давления в системе, а затем все остальные.

Очистка труб от кокса — трудоемкая и длительная операция. Для сокращения ее продолжительности чаще всего произ­водят очистку труб радиантной секции путем продувки их водя­ным паром при одновременном подогреве до безопасной темпе­ратуры в течение 8 час.

Все ремонтные работы в борове и дымовой трубе выполняют только после тщательной продувки их водяным паром и после­дующего вентилирования.

Аварийная остановка печи требуется при прогаре труб, пор­че питающих насосов, прекращении подачи электроэнергии или пара, сильных утечках в двойниках, а также при авариях и по­жарах соседних аппаратов.

В случае аварии необходимо сразу же потушить топливные форсунки и подавать пар во внутренний объем печи, приняв срочные меры к остановке питающих насосов. После снижения давления продукта следует выжать его из змеевиков водяным паром в аварийную емкость или в ректификационную колонну. Подачу пара в змеевик нужно продолжать и после удаления продукта, пока трубы не будут охлаждены.

При возникновении пожара необходимо немедленно потушить форсунки, закрыв общую задвижку на газовой и жидко­стной линиях, подать в топочное пространство пар при полном открытии паровых вентилей, остановить сырьевой насос, принять срочные меры к выдавливанию продукта из змеевиков в ава­рийную емкость, закрыть все отверстия и окна в печи, закрыть шибер воздуха и дыма.

Для выдавливания нагреваемой жидкости из змеевика при остановке и аварии печь оборудуют системой паропроводов, при­соединяемых к подводящей и отводящей линиям, а иногда и к промежуточным точкам змеевика.

Во избежание попадания нагреваемой жидкости в паровую линию необходимо, кроме вентиля, устанавливать на линии об­ратный клапан. Для контроля за состоянием обратно­го клапана и запорного вентиля служит спускной контрольный краник, всегда открытый в атмосферу (кроме момента выжатия). Перед подачей пара в змеевики из паровых линий спускают конденсат.

При прогаре трубы в радиантной секции змеевик продувают паром сверху вниз, а при прогаре трубы в конвекционной сек­ции — снизу вверх. Пар ропускают по трубам в течение всего периода остывания печи.

Перед пуском печи после очистки или ремон­та необходимо тщатель­но осмотреть все ее части и произвести испытание на давление. Перед испытанием змеевик печи промывают водой по ходу про­дукта в течение нескольких часов.

Испытание и опрессовку можно производить водой или жидкостью, подлежащей нагреву. Давление в системе повышают медленно и в два-три приема. После каждой ступени повышения давления осматривают все соединения и отмечают дефекты. Продержав печь под испытательным давлением в течение 5 мин, его медленно снижают. Дефекты устраняют только после снижения давления до атмос­ферного.

После испытания печь ставят на циркуляцию и разжигают форсунки.

IV. Пожаро- взрывоопасные   свойства   нефтей

Нефть, легковоспламеняющаяся жидкость, представляющая собой смесь углеводородов с различными соединениями (сернистыми, азотистыми, кислородными). Свойства нефтей  различны в зависимости от месторождения ( см. приложение-таблица №1).

Плотность-730—1040 кг/м3; начало кипения обычно около 20°С; встречаются и более тяжелые нефти (начало кипения 100°С и больше); теплота  сгорания (43514—46024) кДж/кг; диэлектрическая постоянная 2—2,5; удельное электрическое  сопротивление 5•108—3•1016 Ом•м.

 В воде практически не растворима. Сырые нефти способны при горении про­греваться в глубину, образуя все возрастающий гомотермический слой. Скорость выгорания их (5,2—7)•10-5 м/с; скорость нарастания прогретого слоя (0,7—1,0)•10-4 м/с; температура прогретого слоя 130-160°С; температура пламени 1100°С.

При тушении водой и пенами нужно остерегаться вскипания нефтепродукта.

V. Краткие сведения о пожарах и технологических инцидентах

при эксплуатации печей на месторождениях в Удмуртии

За годы развития  ОАО «Удмуртнефть» ( с 1975 по 2001г) зарегистрировано 17  случаев пожаров на трубчатых печах различных типов.

На Мишкинском месторождении нефти ( 14.10.75г) произошло загорание внутри дымоотводных труб блока нагрева печи типа «БН». Причина пожара была вызвана перегревом внутренней рубашки и, как следствие  прогаром труб.

Через год (3,11,23.03. и 25.07.76г) там же, на этой же печи ночью вновь произошли аналогичные пожары, через прогары труб разлилась нефть. Тушение проводилось длительное время в течение от 1 до 4 часов.

На Киенгопском месторождении нефти ( 24.01. и 6.12.76г)  также отмечены пожары на печи «БН-5», причиной которых  явились прогар  труб и  пробой прокладки .

В декабре 1977г начинается новая серия пожаров на печах. Вновь горит нефть под печью типа «БН-5» на Мишкинском месторождении нефти (7 и 9.02.77г.). Причина - прогар  труб. 

1978г- ночью загорается нефть под печью типа БН-5 на Мишкинском месторождении нефти (5.02.78г.). Через месяц-18.03.78г, а потом 8.11.78г- из-за прогара  труб опять-таки на Мишкинском месторождении загорается разлившаяся нефть у печи «БН». Конец 1978г «знаменуется» пожаром на печи «ПТБ» Киенгопского месторождении нефти ( 26.12.78г) .

В 1979 г пожары на печах не зарегистрированы. В конце 1980г (26.12.80г) на Ельниковском месторождении нефти отмечен пожар на печи «БН», причина которого  вновь связана с  прогаром  труб.

В течение 4-х лет(1981-1984г) на объектах нефтедобычи не было пожаров, связанных с неисправностью печей. В конце 1985г теперь уже на Гремихинском  месторождении нефти 22.12.85г регистрируется пожар на печи «БН», причина которого связана с  прогаром  труб.

Пять лет спустя печь «БН» на Гремихинском  месторождении нефти еще раз напоминает о себе (25.01.90г). Возникает пожар в результате прогара и разрыва сварного шва труб.   

В последующие годы на месторождениях внедряются в производство и начинают использоваться более совершенные печи типа «ПП-1, 6»,  «ПТБ-5»  и  «ПТБ-10».Пожары и аварийные на печах резко идут на убыль. В течение последующих пятнадцати лет инцидентов на печах не фиксируется вплоть до 11. 05. 2001г ( см. стр.7).

         VI. Пожарно-профилактические мероприятия

Основной несущей конструкции печи — металлическому кар­касу — необходимо обеспечивать возможность температурных деформаций. Для этого некоторые соединения делают не сварными, а болтовыми с овальными отверстиями для болтов. Кар­кас не должен перегреваться. Поэтому внутреннюю полку швел­леров или двутавров защищают со стороны топочного простран­ства огнеупорным кирпичом толщиной не менее 20—25 см (или блоками из минерало- ватного теп­лоизоляционного наполнителя).

 Вто­рую полку не следует закрывать кладкой для свободного омывания воздухом с целью охлаждения.

Во избежание вредных деформаций кирпичного заполнения при неравномерном прогреве устраивают температурные швы .

Прогрев печи нужно производить медленно. Сначала зажигают две-три форсунки, через 30 мин.— следующие две и т. д. Режим разогрева печи выбирается таким, чтобы продукт, цирку­лирующий по трубам, нагревался не более чем на 40—50° С в час. Правило розжига форсунок — общее для всех печей.

Для    защиты   кон­струкции  печи  от раз­рушения   при  возмож­ном   взрыве   в   топоч­ном   пространстве   бо­ковые  стены   радиантной   камеры, как правило,    оборуду­ют   предохранительны­ми клапанами . Ничто не должно мешать полному открытию клапанов, они должны быть доступны наблю­дению и проверке.

Змеевики трубчатых печей, как наиболее ответственную часть, выполняют из жаростойкой и износоустойчивой стали. Трубы из высоколегированной стали работают почти до полного закоксовывания, не прогорая.

Для обеспечения работы печи без интенсивного теплового, химического и механического износов труб необходимо контро­лировать: установленные режимы давления в змеевиках, темпе­ратурные режимы работы, качество сырья, соблюдение сроков чистки и профилактического ремонта.

Практикой установлено, что для уменьшения возможности термического разложения давление в трубах должно быть та­ким, чтобы скорость жидкости была в пределах 1—3 м/сек.  Для каждой печи устанавливают нормально допустимые ве­личины давления продукта перед входом в змеевик и по выходе из него и контролируют действительное давление. Нужно сле­дить, чтобы отводные трубки к самопишущим манометрам не закоксовывались.

Во избежание прекращения подачи жидкости в печь емкости, из которых питаются насосы, должны иметь четко обозначенный аварийный уровень. Следует наблюдать, что­бы уровень продукта в емкости не понижался до аварийного.

Режим работы топочного пространства должен контролиро­ваться и регулироваться автоматически. Нормально установлен­ная температура в радиантной камере на перевале и по выходе дымовых продуктов из конвекционной камеры в боров поддер­живается терморегуляторами, фиксирующими действительную температуру и регулирующими подачу топлива к форсункам. Правильность сгорания топлива контролируется анализатором состава дымовых продуктов.

Для каждой печи устанавливается температура поступаю­щего в змеевик и выходящего из него продукта. Для измерения действительной температуры в этих точках помещают термо­пары с самопишущим устройством.

Все контрольно-измерительные приборы должны быть со­средоточены в одном месте и за их показаниями нужно постоян­но следить, а их исправность контролировать.

Для уменьшения химического износа труб количество вред­ных примесей, содержащихся в нагреваемой жидкости, не долж­но превышать величину, установленную инструкцией. Фактичес­кое содержание примесей определяют анализом и отмечают в журнале.

В жидкости не должно быть твердых взвешенных частиц. Жидкость, содержащую примеси больше нормы, подвергают предварительной очистке.

Для каждой печи, исходя из режимов ее работы и состава сырья, составляют график чистки и предупредительного ремон­та. Чистку труб от кокса, графита и сажи производят строго по графику. В это же время всю печь и особенно трубы тщательно осматривают и проверяют.

Правила пожарной безопасности нефтеперерабаты­вающей промышленности требуют, чтобы во время эксплуатации трубчатой печи контролировалось состояние ее труб. Работа с отдулинами и свищами в трубах, а также с износом выше допустимых пределов (уменьшение толщины стенок) запрещает­ся во избежание разрывов труб.

Для выявления отдулин и определения степени износа труб нужно производить не только осмотр, но и необходимые про­меры.

Наружный осмотр и промеры наружного диаметра труб осу­ществляют при каждой остановке печи во всех местах, где это возможно. Внутренний диаметр измеряют по установленному графику в разные сроки для различных печей и даже для раз­личных труб.

Степень изменения диаметра труб, подлежащих замене, за­висит от назначения печи, характера сырья, а также материала труб и приводится в соответствующих таблицах.

Например, для потолочного экрана печи прямой гонки хромомолибденовую трубу с нормальными размерами 116,8 х 126,6 мм бракуют, если ее внутренний диаметр стал 119 мм или внешний диаметр 132 мм. Так как некоторые трубы наибо­лее сильно изнашиваются по концам то допускается примене­ние конических втулок при определенном износе трубы у двой­ника.

Результаты промера и отбраковки труб заносят в специаль­ный журнал.

Материал, применяемый для изготовления корпусов и про­бок двойников, должен противостоять действию высоких тем­ператур и коррозии, особенно при переработке сернистых про­дуктов. Таким материалом является легированная сталь. На­жимные болты и гайки работают примерно в таких же условиях и, следовательно, их нужно изготовлять также из высококачест­венной стали.

Нельзя использовать двойники с имеющимися или заварен­ными трещинами. Подтяжку нажимных болтов для уплотнения пробок можно производить только после снижения давления в трубах до атмосферного.

При закрытии двойников следят, чтобы хвост гайки был прочно закреплен в соответствующем вырезе корпуса, а поверх­ность пробки не была сработана.

Для защиты двойников от атмосферных воздействий шкафы двойников должны иметь плотно закрывающиеся металлические дверцы. Под двойниками в шкафах устанавливают дренажные противни.

При образовании течи, что обнаруживается по газам, иду­щим от дверцы двойниковой коробки, необходимо немедленно дать пар в двойниковые шкафы и замазать все щели дверей глиной для изоляции двойников от воздуха. При сильной течи нужно остановить печь.

Прочность и плотность труб и двойников проверяют гидрав­лическим испытанием на давление в полтора раза выше макси­мального рабочего давления. Рекомендуется до опрессовки про­дуктом проверить плотность соединений труб и пробок двойни­ков водяным паром при давлении 10 атм.

Во избежание пожаров у форсуночного фронта трубчатых печей необходимо следить за исправностью топливных линий, плотностью фланцевых соединений и сальников задвижек. Воз­душные короба и площадка под форсуночным фронтом должны быть чистыми. Для удобства поддержания чистоты площадка должна иметь твердый покров и лоток с подводом воды. Это дает возможность смывать излившееся топливо в канализацион­ную систему через гидравлический затвор. Форсунки защищают от прямого воздействия ветра металлическими щитами.

Во избежание аварий трубопроводов, подводящих и отводя­щих продукт от трубчатой печи, их выполняют из высококаче­ственной стали, хорошо закрепляют, устраивают минимальное количество фланцевых соединений, снабжают температурными компенсаторами, задвижками и исправной теплоизоляцией.

VII. Средства   пожаротушения.

Каждую трубчатую печь оборудуют стационарной системой паро- или азототушения ( возможно совмещение) и снабжают необходимым, количеством первичных средств пожаротушения.

В летнее время, как правило, котельные на месторождениях останавливаются на профилактический ремонт и обслуживание, бесперебойная подача пара в печи вызывает затруднения. В настоящее время внедрены  и используются на печах ПТБ-5, ПТБ-10 в НГДУ «Ижевскнефть», а также в Игринском и Сарапульском НГДУ установки азототушения, которые более эффективны и могут задействоваться в любое время года.

7.1. Стационарные системы паротушения.

Водяной пар для трубчатой печи является основным сред­ством пожаротушения, поэтому стационарная система должна быть правильно выполнена. Пар нужно подводить в радиант­ную камеру, во все коробки двойников, в боров и дымовую трубу.

В радиантную камеру пар подводится с двух противополож­ных сторон самостоятельным трубопроводом  диаметром не ме­нее 50 мм. Пусковые вентили располагаются в наиболее безо­пасном месте, но не ближе 5 м от печей.

Подвод пара к коробкам двойников производится по линиям диаметром не менее 25 мм. Для каждой коробки двойников пре­дусматривается самостоятельный отвод  с пусковым вентилем, расположенным сбоку от дверец. Паровая линия  должна быть подведена также к основанию дымовой трубы.

Все паровые линии имеют приспособления для продувки их от конденсата. Работа печи с неисправной подводкой пара не разрешается. Давление пара в паровой магистрали должно со­ставлять  около  4  атм.   Паровые  линии   имеют отличительную окраску от других линий и таблички на вентилях с обозначением места ввода пара.

Тушение небольшого количества излившегося продукта мож­но производить огнетушителями, песком и асбестовыми одея­лами. Количество этих первичных средств пожаротушения опре­делено нормами . При больших пожарах, кроме водя­ного пара, применяют пену и воду.

Нельзя направлять струи воды во внутренний объем печи и на сильно разогретые поверхности. Наружные нагретые по­верхности (арматуру, каркас, дымовую трубу и т. п.) можно ох­лаждать распыленной водой, а сильно разогретые (двойники и т. п.) - пеной.


7.2.  Установки   азотного  пожаротушения и   продувки

         инертным газом  технологического  оборудования.

Азот N2

 
                  –газ без цвета и запаха, немного легче воздуха. Молекулярный вес-28,01;

 плотность-1,2506 г/л; плотность в сжиженном состоянии 808 кг/ м3 при t= - 196°С;

температура плавления t = - 210°С; температура кипения t = - 195,8°С;  плотность  

по    воздуху 0,967.

Огнетушащий эффект при воздействии газообразного азота достигается за счет разбавления продуктов реакции в зоне горения до такого содержания кислорода, при котором горение становится невозможным. Как правило до достижения эффекта –тушения пожара- азотом необходимо заполнить 40-60% объема пространства  технологической установки.


Назначение:

Установки предназначены для обеспечения тушения пожара при возгорании нефти, газового конденсата и нефтепродуктов в закрытых объмах блочных печей (ПТБ-10, ПТБ-1 ОМ, ПТБ-1 ОА, БТП-10, ПТБ-5-40, ПТБ-5-40А, ППН-3 и пр.) и других технологических установок и/или для продувки инертным га­зом оборудования и трубопроводов на нефтегазодобывающих и перераба­тывающих предприятиях, нефтебазах, базах нефтепродуктов и химических реагентов.

Принцип

 работы:

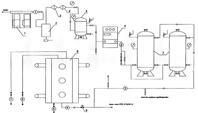
Непосредственно на производственных площадках, с помощью мембранных воздухоразделительных азотных установок типа АПТ  из атмос­ферного воздуха выделяется азот с чистотой 95-96% об. и закачивается в ресиверы объемом 8-100 м3 ( у нас-50 м3 ) для хранения. В случае возгорания, азот по­ступает в технологический объем печи и обеспечивает быстрое и надежное тушение возгорания без побочного воздействия на оборудование и персо­нал (см. принципиальную технологическую схему установки азототушения на стр.17).

Опыт

эксплуатации:

Установки азотного пожаротушения эксплуатируются на центральных пунк­тах сбора и подготовки нефти с 1 октября 1992г после проведения пер­вых в России успешных промышленных испытаний по азототушению печей ПТБ-10 на К иенгопском месторождении нефти в ОАО «Удмуртнефть». В 1997 году азотные установки типа АПТ рекомен­дованы к широкому применению межведомственной комиссией ОАО НК «ЛУКОЙЛ». Узел ввода азота в печи ПТБ разработан и внесен в техничес­кую документацию завода-изготовителя (ОАО «Нефтемаш»).

Снижение эксплуатационных затрат при подготовке нефти:

                         Традиционная технология паротушения требует непрерывной круглогодичной выработки пара в котельной и аренды передвижной паровой установки в период ремонта котельной, что приводит к значительным эксплуатацион­ным затратам и коррозионному износу трубопроводов. Применение уста­новки азототушения взамен паротушения обеспечивает снижение себестои­мости подготовки нефти и газового конденсата, существенно повышает надеж­ность и быстродействие системы аварийного пожаротушения, обеспечивает продувку инертным газом оборудования и трубопроводов при сварочных и пуско-наладочных работах. Расчетный срок окупаемости одной установки на три - четыре печи ПТБ-10 по расчетам ОАО НК «ЛУКОЙЛ» составляет от 4 месяцев до 1 года (в зависимости от капитальных затрат на строительство).

Пример

 использования:

Для гарантированного тушения пожара в трех печах ПТБ-10 в составе УППН необходимы два ресивера (рабочий и резервный) по 25м3 для хранения азо­та под давлением 4,5- 5,5 кГс/см2. После первого заполнения ресиверов, осуществляется периодическая работа мембранной азотной установки АПТ и компрессора для подкачки азота. Время тушения возгорания нефти в пе­чах ПТБ составляет 30-50 сек по результатам ведомственных испытаний (По нормативам НПБ-96 - не более 60 сек.). Время профилактической продув­ки свободного объема печи азотом после тушения, в процессе охлаждения стенок змеевика -1-2 мин.

Размещение

 и   монтаж:

Мембранная воздухоразделительная азотная установка типа АПТ и компрес­сорное оборудование монтируются в капитальном отапливаемом помеще­нии воздушной компрессорной или типовом блок-боксе непосредственно на площадке нефтегазодобывающего предприятия.

По­лучение сухого азота из воздуха и использование для этого

мембранных воздухоразделительных азотных установок:

Разделение воздуха на полимерных мембранах (мембранная технология) является интенсивно развивающимся технологическим направлени­ем, как в области создания новых мембранных материалов и оборудования, так и в области производства промышленных мембранных уста­новок.

Мембранная технология позволяет дос­таточно просто и экономически эффективно по­лучать сухой азот из воздуха в широком диапа­зоне концентрации –

от 90 до 99,0% об., так же обогащенную до 40% об. кислородную фрак­цию с расходами от 1 до 500 нм3/час.

          Мембранная воздухоразделительная азотная установка АПТ:

   Основным узлом установки азотного пожаротушения и продувки инертным газом технологичес­кого оборудования является мембранная воздухоразделительная азотная установка типа АПТ, служащая для получения из атмосферного воздуха азота (с концентрацией не ниже 95 % об.) для заполнения ресиверов.

 

Технические характеристики типовой мембранной

воздухоразделительной азотной установки типа АПТ-М8:


·     давление исходного сжатого воздуха                                                              5-6 кГс/см2;

     (норма подготовки соответствует стандарту воздуха КИП)

·     расход воздуха на входе в установку                                                   15-20 нм3/час

·     производительность установки по азоту                                                         6-8 нм3/час;

·     концентрация азота в целевом потоке, не менее                                            95 % об.;

·     давление азота на выходе из установки                                               4.8- 5.8 кГс/см2;

·     степень осушки азота (температура точки росы)                              -40 - -50 °С;

·     температура в помещении, где располагается установка                 +10°-+40°С;

·     режим работы                                                                              периодический/ непрерывный;

·     гарантийный срок работы                                                                                 12 месяцев

      (с момента вода в эксплуатацию)

·     нормативный срок работы установки                                                  не менее 5-ти лет;

·     габаритные размеры установки :                                                                      600:600:2000 мм;

·     масса установки,                                                                                     нетто100кг;

·     потребление электроэнергии(220В,50 Гц)                                          50 Вт

      (не включая компрессор)

Установки серии АПТ выпускаются с1992 г. С 1997 г началось производ­ство, поставка, и сдача в эксплуатацию модернизированных азотных установок типа АПТ-М6-95М. С 2001 г. ЗАО «НВФ МЕТАКС» серийно выпускаются модернизированные воздухоразделительные азотные установки типа АПТ-М8 улучшенного качества и увеличенной производительности.

Предприятия-разработчики технического про­екта привязки установок азототушения и продув­ки оборудования инертным газом: ОАО «Перм-НИПИнефть» (головной проектный институт), ДЗАО «Волгограднефтепроект», ДЗАО «Нижне-вартовскНИПИнефть», ОАО «УдмуртНИПИ-нефть», ОАО «ТомскНИПИнефть», ЗАО «Юж-НИИГИПРОгаз», ГПИ«Нефтехимпроект», ОАО «Сибнефтегазпроект».

        

Мембранные азотные установки типа АПТ эксплуатируются в ОАО «Удмуртнефть» на следующих объектах:

Год внед-рения

Производственное

предприятие

Тип и назначение

мембранной установки

1992

ОАО «Удмуртнефть»

НГДУ «Ижевскнефть»

Установка азототушения на базе установки нового типа - АПТ. Проведение первых в России успешных промышленных испытаний установки азототушения печей ПТБ-10

1993-1994

ОАО «Удмуртнефть»

НГДУ «Ижевскнефть»,

Сарапульское НГДУ

Две автоматизированные азотные установки типа АПТ-МЗ
1995

ОАО «Удмуртнефть»

НГДУ «Ижевскнефть»

Азотная установка типа АПТ-М4
1997

ОАО «Удмуртнефть»

НГДУ «Ижевскнефть»

Первая установка новой серии АПТ-М6-95 для азототушения печей ПТБ-10 (замена установкики АПТ-МЗ)

1999

ОАО «Удмуртнефть»

Игринское НГДУ

Установка АПТ-М6-95М (модификация новой серии)
2000

ОАО «Удмуртнефть»

НГДУ «Ижевскнефть»

Замена установки АПТ-М4 на серийную установку АПТ-М6-95М
2001

ОАО «Удмуртнефть»

Сарапульское НГДУ

Замена установки АПТ-МЗ на серийную установку АПТ-М8

Типовая схема установки азотного пожаротушения на

примере обвязки печей типа ПТБ-10 :

 

 

Технологическое оборудование:



1. Компрессорный модуль [2 шт.].

2. Блок влаго-маслоочистки воздуха

    с конденсатоотводчиком.

3. Фильтр предварительной очистки.

4. Фильтр тонкой очистки.

5. Воздухосборник- В-4-1бГС-УХЛ1

   (V=4м3, Р=5-6кГс/см2).

6. Мембранная азотная установка АПТ-М8.

7. Ресивер В-25-16ГС-УХЛI с азотом

   (95-96 % об., V-25мэ ,Р=4,5-5,5 кГс/см2) [2шт.].

8. Печь ПТБ-10 №1.

9. Клапан с электроприводом

и дистанционным управлением


   

              


Овальная выноска: Мемранная азотная установка
« АПТ-М8 »

Овальная выноска: Ресиверы 
с   азотом

Овальная выноска: Печь
 «ПТБ-10»

Выноска-облако: Азот с печи «ПТБ-10»
 


 


Технологические линии:


 Воздух с компрессора. (Ду50)

Азот в ресиверы. (Д/25-50)

ƒ Азот из ресиверов в азотную

    линию. (Ду 100-150)

Азот в печь ПТБ-10. (Ду 100-150)

Природный газ в печь ПТБ-10.

Вход нефти в печь ПТБ-10.

Выход нагретой нефти.


Позитивные особенности  использования

установок азотного пожаротушения:

·     Разрешения и рекомендации ГПС МВД РФ и Госгортехнадзора РФ.

Применение азота для пожаротушения разрешено нормами пожарной безопасности Государственной противопожарной службы МВД РФ (НПБ-22-96; 54-96; 51-96).

Мембранные азотные установки рекомендованы Госгортехнадзором РФ к применению на нефтегазо- добывающих предприятиях. Исполнение узлов установки АПТ не требует регистрации органами Госгортехнадзора (ПБ-10-115-96).

·     Изменяет ли использование азота для тушения картину возникновения

причин пожара при проведении расследования?

Не изменяет абсолютно.

·     Возможность нанесения объекту тушения дополнительного ущерба в

процессе ликвидации пожара?

Отсутствует.

·     Экологическая чистота.

Отсутствуют вредные выбросы, твердые и жидкие отходы.

·     Обеспечение специальной безопасности для персонала.

 Не требуется применения специальных средств защиты персонала при работе

установки.

·     Уровень квалификации персонала для допуска к эксплуатации установки.

Обычные требования допуска к работе на нефтегазодобывающем предприятии,

обучение персонала производится в ходе пуско-наладки установки на пло­щадке

Заказчика.

·     Простота эксплуатации.

Не требуется постоянное присутствие оператора, отсутствуют движущиеся части

и механизмы (кроме компрессоров).

·     Возможность автоматизации.

 Установка АГТТ обеспечена типовыми приборами автоматизации, сигнализации

и контроля. Режим работы установки поддерживается автоматически.

·     Возможность увеличения производитель­ности установки АПТ по азоту.

Достигается простым увеличением числа аппаратов и легко модернизи-

ру­ется на действующей установке.

           VIII. Извлечения из « Правил пожарной  безопасности

            в нефтяной промышленности  (ППБО-85) » ( глава 7)

7.5.7. Установки с огневым подогревом

(трубчатые печи, блочные огневые нагреватели)

7.5.7.1. Площадка перед форсунками должна иметь твердое покрытие и уклон в сторону лотка, соединенного с промышленной канализацией через гидравлический затвор.

Для смыва пролившегося жидкого топлива должен быть устроен водопроводный стояк.

7.5.7.2. Пуск печей может быть разрешен только лицом, ответственным за эксплуатацию.

7.5.7.3. Система, подводящая  газ к  горелкам, должна  быть испытана в соответствии с Правилами безопасности в газовом хозяйстве.

7.5.7.4. Запрещается  при  разжигании  форсунок  факелом  пропитывать его ЛВЖ.

Тушить факел, используемый для растопки, следует в несгораемом ящике или в ведре с сухим песком.

7.5.7.5. На топливном трубопроводе должны быть установлены задвижка (на расстоянии не менее 10 м от фронта форсунок), позволяющая одновременно прекратить подачу топлива ко всем форсункам; редуцирующее устройство, отрегулированное на давление необходимое для горения горелок, а также конденсатосборник предупреждения попадания конденсата в систему автоматики, КИП и горелки.

Аварийная сигнализация автоматических устройств должна выведена в операторную.

7.5.7.6. Если установка не работает, топливный газопровод необходимо  герметически   отключить   от   печи   и   поставить   заглушку. При отключении газопровода  от печи  нельзя открывать продувочные свечи,  прежде чем  будут надежно закрыты задвижки на всех горелках.   Задвижки   на   продувочной  свече  должны  быть  открыты полностью.

7.5.7.7. Стационарная система паротушения печей всегда должна быть в исправном  состоянии.  Работа  печи  с неисправной системе паротушения не разрешается.

Коллектор пожаротушения должен быть расположен в удобном для подхода месте и окрашен в красный цвет.

7.5.7.8. Запрещается зажигать  потухшие горелки  печи  от раскаленных панелей или кладки топки печи.

7.5.7.9. Запрещается   разжигать    горелки    без    предварительной продувки топки печи паром. Продувочные свечи обвязки печей должны быть выведены в безопасное место по согласованию с органа­ми пожарного надзора.

Газопроводы, идущие к форсункам (горелкам), должны быть оборудованы продувочной линией с выбросом газа в факельную ли­нию.

7.5.7.10. Устройства, предназначенные на случай аварии или по­жара для слива нефти, должны быть исправными. Задвижки ли­ний аварийного слива должны иметь опознавательные знаки, а под­ступы к ним должны быть свободными.

Аварийный слив можно производить только по указанию началь­ника цеха, установки или ответственного руководителя работ по лик­видации аварии (пожара). Последовательность операций при осу­ществлении аварийного слива должна предусматриваться инструк­цией.

7.5.7.11. Из аварийной емкости перед началом спуска в нее из печи горячей жидкости необходимо тщательно удалить остатки во­ды и обводненного продукта. До начала спуска жидкости в ава­рийную емкость должен быть подан водяной пар, предварительно освобожденный от конденсата. Включать устройства пожаротушения следует дистанционно.

7.5.7.12. При возникновении пожара у фронта форсунок печей, в камерах двойников, при горении сажи в борове и дымовой трубе, необходимо пустить пар через линии паротушения и вызвать пожар­ную охрану.

7.5.7.13. Во время эксплуатации трубчатой печи должен быть обеспечен контроль за состоянием ее труб (во избежание прогара их). Работа печи при отдушинах и свищах в трубах, а также при превышении допустимых пределов износа труб запрещается.

7.5.7.14. Запрещается эксплуатация трубчатых печей с неисправ­ными двойниками, пропускающими нефть, а также открытие дверок камер двойников во время работы печи.

7.5.7.15. Не допускается эксплуатация паропроводов для пода­чи пара в змеевик печи и другие аппараты при отсутствии устройств, обеспечивающих предварительный спуск конденсата из паропровода.

7.5.7.16. Нагреватели печи должны быть снабжены сигнализаци­ей, срабатывающей при прекращении подачи жидкого или газооб­разного топлива к горелкам (форсункам) или снижении давления ниже установленных норм.

7.5.7.17. На печах следует устанавливать сигнализаторы погасания пламени, автоматические устройства, прекращающие подачу топлива к форсункам (горелкам) при их погасании, сигнализацию предельно допустимой температуры на перевале печи.

Приложение 1.

Пожаровзрывоопасные   свойства   нефтей

     

таблица №1

Нефть
Температура, °С

Нижн. конц.

предел

распр.

плам.

распр.

Темп. предел распр. пламени,°С БЭМЗ, мм
вспыш. воспл. % (об.) нижн. верхн.

Азизбековская

Бавлинская

Байтуганская

Балаханская   сырая  

тя­желая

Барсагельмесская (гельмесская)

Биби-эйбатская:

легкая

тяжелая

Бинагадинская сырая

Бурунская

Верхозимская

Дагаджикская

Девонская    с 

 наливной эстакады

Западно-сургутская

Зимницкая

Зольнинская сырая

Каменноложская

Кара-арнанская

Кара-дагская

Кара-чухурская

Карловосытовская

Качановская

Киенгопская

Комаровская

Коробковская    (угленос­ного горизонта)

Котур-тепинская

 (центрального     участка) Кудиновская

Куединовская

Кумдагская   (восточного

и   западного   участков) Лебяженская

Лудошурская

Мегионская

Мишкинская

Мухановская

Ново-аманакская

Ново-елоховская

Новозапруднйнская и

алакаевская

Окаремская

Ольховская


— 7

237 1,4 —   —       0,96
-25 240 1,1 —   —       0,97
6 ——      __              __
23 310 23   50   -
12 239 1,4 —   —       0,96
5 260 2   26   —
27 310 26   57   —
18 300 12   39   —
—8 252 1,7 —   —      0,93
25 —   —      —
<-17 243 1,3 —   —      0,97
<-17 226 1,2 —   —      0,93
-18 233 1,1 —   —      0,97
27

——      __            __

 

-35 -35 -14   —
—7 233 1,2 —   —      0,96
130 —— _

__      __            __

 

— 21 320 -21  19   —
34 290 31  80    —
<-21 231 1,2 —   —       0,97
<— 22 235 —   —      0,95
19 —   —      —
22 _ _   _   _
-15 235 1,1 —   —      0,97
-3 250 2,1 —   —      0,98
<-17 233 1,3 —   —      0,97
<— 29 232 1,3 —   —      0,97
18 237 2,4 —   —      0,96
<-21 225 1,2 —   —      0,93
23 —   —     —
— 18 227 1,1 —   —      0,97
22 ——    __           __
<-15 231 0,9 —   —      0,96
-16 227 1,3 —   —      0,98
-23 224 0,9 —   —      0,96
<— 20 231 1,2 —   —      0,97
5 290 2,2 —   —      0,94
<-28 223 1,3 —   —       0,95


 

Список литературы:

1. Алексеев М.В., В.М. Смирнов. Пожарная профилактика в технологических процессах,  связанных с обращением горючих и легковоспламеняющихся жидкостей. М.,   издательство   Министерства   коммунального  хозяйства РСФСР, 1955г, [стр.43-57].

2. Алексеев М.В. Основы пожарной профилактики в технологических процессах производств. М., Высшая школа  МВД СССР,  НИиРИО, 1972г., [стр. 120-146, 164-169].

3. Баратов А.Н.,  Корольченко А.Я.,  Кравчук Г.Н. и др. Пожаровзрыво-опасность веществ и материалов и средства их тушения: Справ, изд.: в 2-х кни­гах;  —М., Химия, 1990. [стр.40-42].

4.  Правила пожарной    безопасности   в   нефтяной   промышленности  (ППБО-85). М. ,  "Недра", 1987г, [стр.72-73].

5.  Письмо  института "УдмуртНИПИ нефть"- "О результатах анализов"   от   20.12.00г  №10/ 2275.

6. Проспект научно-внедренческой фирмы «Метакс». Установка азотного    пожароту-шения  печей и продувки инертным газом технологического оборудования. М., НВФ«Метакс»,2001г.

ОГЛАВЛЕНИЕ

Аннотация

……………………………………………………………………………

3

Глава I

Назначение, устройство и работа трубчатых печей…………….

3

Глава II

Причины взрывов и пожаров в топочном пространстве печей..

5

Глава III

Остановка и пуск трубчатой печи…………………………………..

9

Глава IV

Пожаро- взрывоопасные   свойства   нефтей…………………….

10

Глава V

Краткие сведения о пожарах и технологических инцидентах при эксплуатации печей на месторождениях в Удмуртии……..

11

Глава VI

Пожарно-профилактические мероприятия……………………….

11

Глава VII

Средства   пожаротушения………………………………………….

13

7.1. Стационарные системы паротушения……………………….

13

7.2.  Установки   азотного  пожаротушения и продув-ки инертным газом  технологического  оборудования.

14

Глава VIII

Извлечения   из  « Правил пожарной  безопасности  в

нефтяной промышленности  (ППБО-85) »……………………….

18

Приложение

Пожаровзрывоопасные   свойства   нефтей………………………….

21

Список

литературы

…………………………………………………………………………..

22


ОТРЯД  ВЕДОМСТВЕННОЙ         Заместителю

      ПРОФЕССИОНАЛЬНОЙ                   генерального директора            

       ПОЖАРНОЙ ОХРАНЫ                           ОАО «Удмуртнефть»      

   *426039, г. Ижевск, пос.Смирново,19а                                    В.А. Шмелеву

                         ( 483-275, 483-526, 483-099

     От __________ №______________

         На №________ от ______________    

                                  С Л У Ж Е Б Н А Я         З А П И С К А

Уважаемый  Владимир  Андреевич !

Представляем для утверждения доработанное, с учетом замечаний гл.технолога ОАО «Удмуртнефть» Усанова И.Н., справочное пособие  « Пожарная   опасность   трубчатых   печей » , включающее  в себя восемь основных разделов.                                           

 В пособии приведены основные сведения о назначении , устройстве трубчатых печей, в том числе «ПТБ-5», «ПТБ-10» и «ПП-1,6». Отмечены причины взрывов и пожаров при эксплуатации печей, приведены примеры пожаров и аварийных ситуаций в ОАО «Удмуртнефть». Рассмотрены вопросы паро- и азотного  пожаротушения печей и продувки инертным газом технологического оборудования. Указаны физико-химические свойства и  показатели  пожаро-взрывоопасности нефтей. Даны извлечения из Правил пожарной    безопасности   в   нефтяной   промышленности   (ППБО-85).

        Считаем нужным подчеркнуть, что настоящее пособие не является инструкцией по эксплуатации. Пособие предназначено прежде всего для работников пожарной охраны, может быть полезно инженерно-техническим работникам ОПБ и ОТ на месторождениях нефти, а также  студентам  нефтяного факультета  УдГу.

 

Приложение : пособие « Пожарная   опасность   трубчатых   печей », на 23 л.,

исх. №01/ 770 от 23.11.01г.

Начальник отряда                                                                 А.С.Измайлов


© 2012 Рефераты, курсовые и дипломные работы.